PLANOS
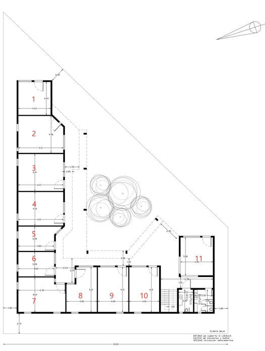
Se presentan los planos correspondientes a la planta baja y al primer piso del desarrollo. En ellos se pueden visualizar la distribución de los locales, accesos, áreas comunes y circulaciones, permitiendo una comprensión integral del espacio y sus posibilidades de uso.




1
19 metros cuadrados. VENDIDO
3
4
5
7
6
8
9
10
11
12
13
14
15
16
17
18
19
20
21
28 metros cuadrados. VENDIDO
29 metros cuadrados. VENDIDO
27 metros cuadrados. u$s 43200
16 metros cuadrados. VENDIDO
15 metros cuadrados. VENDIDO
27 metros cuadrados. VENDIDO
21 metros cuadrados. VENDIDO
24 metros cuadrados. VENDIDO
24 metros cuadrados. VENDIDO
22 metros cuadrados. VENDIDO
19 metros cuadrados. VENDIDO
28 metros cuadrados. u$s 39200
29 metros cuadrados. u$s 40.600
27 metros cuadrados. u$s 37.800
16 metros cuadrados. VENDIDO
15 metros cuadrados. VENDIDO
27 metros cuadrados. u$s 37.800
18 metros cuadrados. VENDIDO
20 metros cuadrados. VENDIDO
20 metros cuadrados. u$s 28.000
29 metros cuadrados. VENDIDO
19 metros cuadrados. VENDIDO
LOCALES
ENTREGANDO EL 50% Y EL RESTO EN 18 CUOTAS PUEDE SER TUYO
22
23
2
Los Robles Paseo comercial
Desarrollo de locales comerciales en zona en crecimiento.


Ubicación Estratégica
Potenciando la actividad económica local y emprendedores.
Diseño Moderno
Contemporáneo, materiales de calidad y espacios ideales.




Desarrollo Urbano
Integrando obras al entorno y generando valor comunitario.
Inversores Beneficiados
Generando valor tanto para la comunidad como inversores.
